
Selbstverriegelnde Mehrfachverriegerlung SECURY Automatic
mit Panikfunktion E und gesicherter Fallenfeststellung
Funktion von innen: (Panikseite)
Die Tür hat innen einen Drücker. Durch Drückerbetätigung
werden Falle und der vorgeschlossene Riegel zurückgezogen.
Die Tür kann geöffnet werden.
Funktion von aussen:
Die Tür hat außen einen feststehenden Knauf. Falle und Riegel
können mit dem Schlüssel betätigt werden. Nach dem
Zuschlagen der Tür wird diese automtisch verriegelt,
das Öffnen von außen durch die Falle verhindert.
Die Tür kann nur mit Hilfe des Schlüssels
geöffnet werden. Zum Öffnen der Tür wird durch Schlüssel-
betätigung die Falle mit Hilfe des Wechsels zurückgezogen.
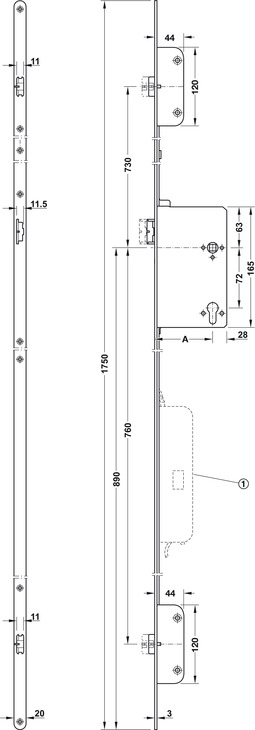
Produktdetails:
Entfernung: 72 mm
Dorn: 65 mm
Drückernuss: 9 mm durchgehend
Stulp: 20 x 1750 mm Edelstahl
Einsatzbereich: für einflügelige, gefälzteTüren aus Holz oder Stahl, auswärts öffnende Türen
Ausführung: alle 3 Fallenriegel werdem beim Schließen der Tür automatisch vorgeschlossen !
Funktion: mit gesicherter Fallenfeststellung
Getriebe: Schlüsselbetätigt
Anschlag: DIN links oder DIN rechts
Schließarten:
PZW: Zylinderschloss vorgerichtet für Profilzylinder, mit Wechsel